Art Gallery
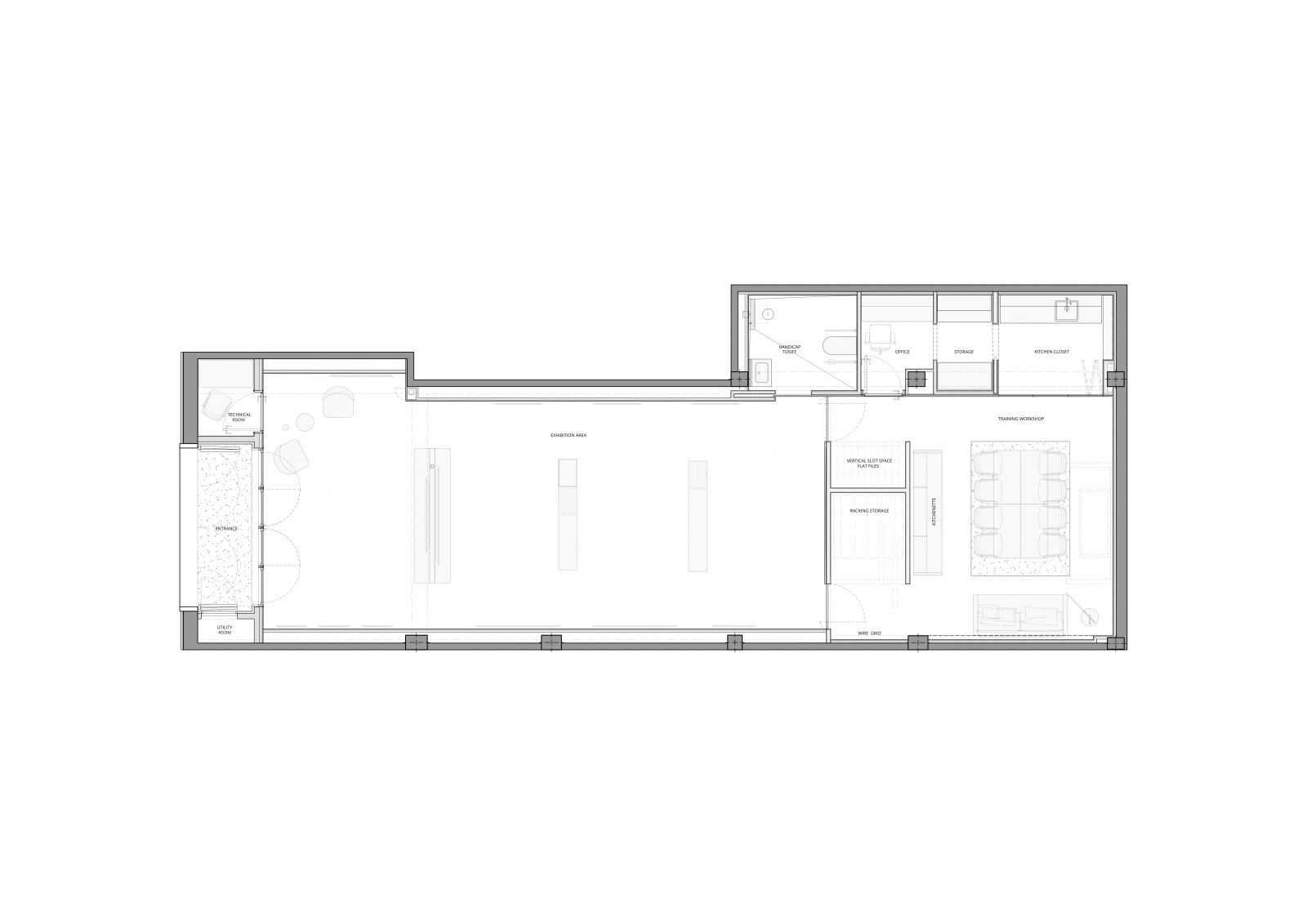
The renovation and interior design project for Galería Xplora, located in the historic centre of Palma on the ground floor of a residential building with direct street access, is tailored to the technical requirements of a digital art gallery and aims to create an open, versatile space that enhances the visual experience of the exhibition area.
For a contemporary space for creation and reflection such as this, the project seeks to stimulate the senses by creating comfortable atmospheres in each of its areas.
Location
Palma, Mallorca
Status
Under construction
Year
2025




